Sizing Gas/Liquid Separators When the Rate of Entrained Liquid is the Driving Factor
Call us at 908.362.9981 to speak with a sales engineer
This article provides an overview of the 28 centrifugal gas/liquid
separator models as relates to our online separator sizing calculators.
Sizing
Program
The first section is the design criteria to input, notably input the molecular weight of the gas, maximum temperature, minimum pressure at which to maintain separation efficiency and maximum flow rate for the application. If a reciprocating style compressor is delivering the flow, double the flow rate to ensure proper sizing.
The minimum separator size required is calculated for two types: standard and receiver style separators. Note “size” is an indirect reference to the minimum vessel diameter and cylindrical length of the separator body. Separator sizes are based upon the maximum allowable inlet nozzle ID and provides an easier way to compare different separator designs. Input the “chosen separator size” ≥ the calculated separator size required to review its performance.
The performance data for the chosen separator size based upon the design criteria (1). The data includes maximum vapor capacity (volumetric and mass), the percentage capacity used based upon size chosen and the differential pressure for both maximum capacity and the design criteria. If your application has maximum differential pressure threshold, you may need to increase the separator size until you satisfy that design criteria.
Table of maximum liquid separation capacity in mass and volumetric units based upon the six possible separation capacities (capacity is separator model dependent). These capacities help you compare between designs, for example using a design which has a 60% separation capacity compared to a larger size based upon a 20% or 40% design.
Maximum Liquid Separation Capacity
The maximum
capacity for a given size gas/liquid separator is dependent upon the
operating pressure; at higher pressures the capacity increases. The
maximum liquid separation capacity is expressed as a percentage of the
maximum vapor flow rate capacity for a given set of design criteria, but
mostly the lowest operating pressure at which maximum separation
efficiency is required. In above example the 5% - 90% table data are
with reference to a maximum vapor capacity of 73,285 lbs/hr.
Performance
Separation efficiency for single stage
gas/liquid separators is separation of entrained droplets > 10 microns
in diameter with 99% efficiency. Dual stage (coalescing) separators may
separate droplets as fine as >0.3 microns in diameter with 99%
efficiency.
Specialized Designs
Some
separator models are designed for specific application characteristics
which range from separation of liquid “slugs” to separation of viscous,
slurry or high particulate vapor flows.
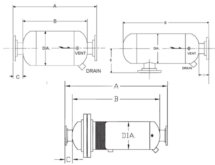
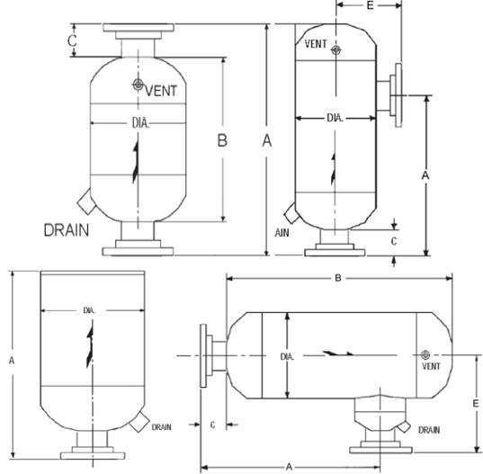
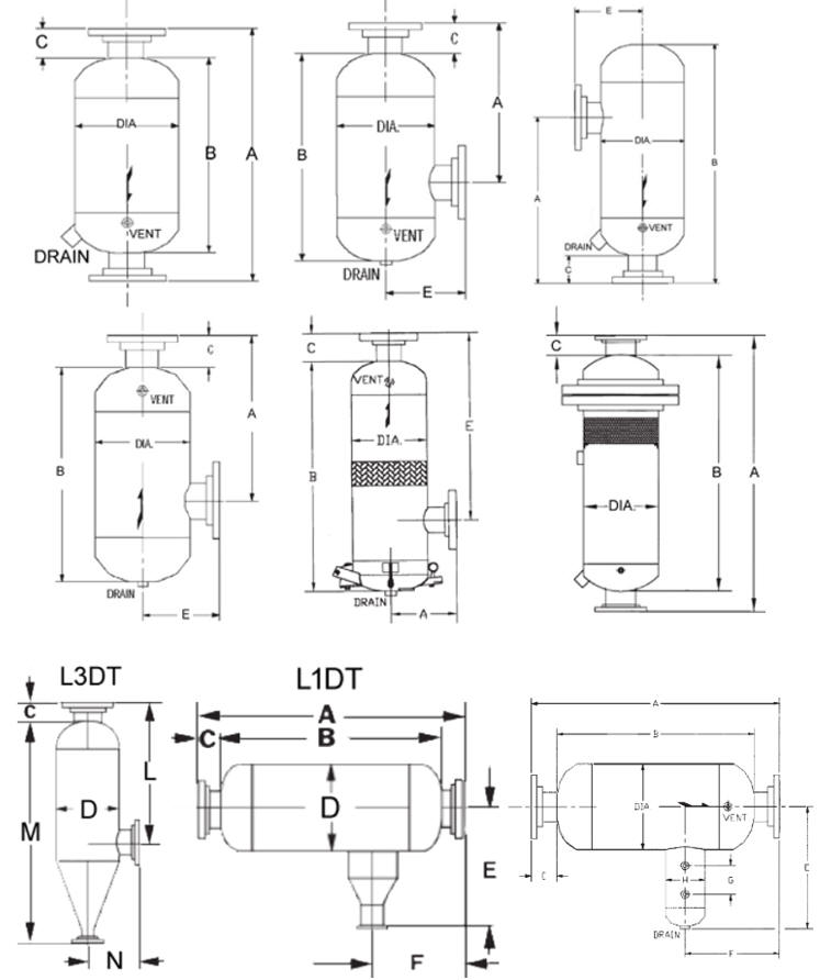
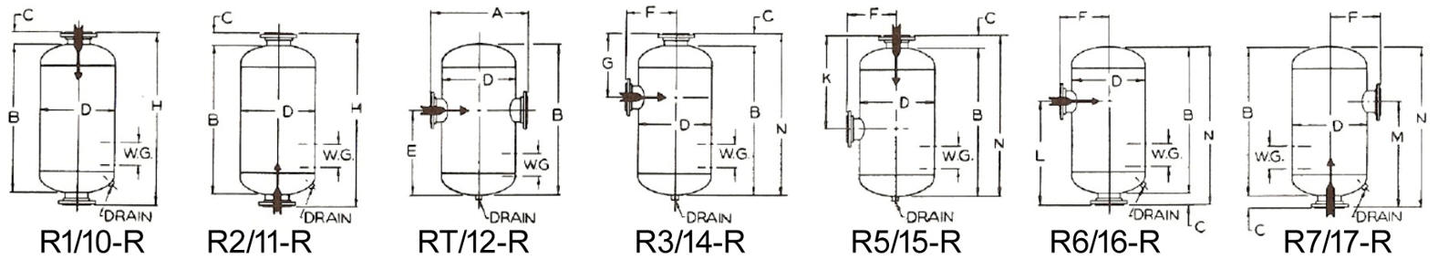
CLICK THE PICTURE TO VIEW CORRESPONDING
DATASHEET
5% Separation
Models: 31L/36L
The maximum liquid separation capacity for
these designs is equivalent to 5% of the maximum rated capacity.

10% Separation Models: 32L/34L/37L/EH
These
separator designs have a separation capacity equivalent to 10%.

20% Separation Models:
31L/S, 33L, 35L, 36L, DTL,
35L/36L
There are several separator designs which have a separation
capacity equivalent to 20%, including coalescing and clog resistant
versions.

40% Separation Models: T, TT, DT (clog
resistant)
These separator designs have a separation
capacity equivalent to 40% of the maximum capacity of a given size
separator.

60% Separation Models:
The type
TS separator has a separation capacity equivalent to 60% of the maximum
capacity of a given size separator. The type TS is based upon a type T
design (40%) except it has an elongated body to increase separation
capacity and has a hold-up volume to support drainage via specialized
valves or pump systems.

90% Separation Models:
This design is referred to as a “receiver separator” and has a
separation capacity equivalent to 90% of the maximum capacity of a given
size separator. As reflected in the sizing calculator a larger separator
body size is typically required for such a high liquid separation rate.
Continuing with our example, an 8” size separator is sufficient for the
design criteria but a 10” size is required if using a receiver separator
deign. This is due to increased internal complexity required to achieve
high liquid separation rates.
When the liquid entrainment rate is
the driving factor for separator sizing, often receiver separators will
provide separation in the smallest physical “footprint” when compared to
“oversizing” other separator designs.
Related Articles